News 

 


09/2025

Storkower Straße  | Neubau studentisches Wohnen

 

 

In der Storkower Straße im Bezirk Berlin-Lichtenberg entsteht ein Wohngebäude für studentisches Wohnen. Das Bauwerk wird in Modulen der Firma Lechner vorgefertigt und komplett ausgestattet vor Ort lediglich zusammengestellt und montiert. Flure, Aufzugschächte und andere Sonderbauteile werden  in Ortbeton hergestellt. Diese Bauart dämmt die Mängel der normalen Baustelle ein und reduziert die Bauzeit um fast 60%.

 

 


07/2025

Liegnitzer Straße  | Aufstockung einer Lagerhalle

 

 

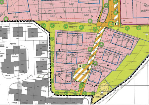
PWK GmbH ist mit der Ausführungsplanung von zwei Studentenwohnheimen in Winnenden beauftragt worden. Die Studentenunterkünfte werden in einer Modulbauweise hergestellt. Diese rationale und effiziente Bauweise garantiert eine termingenaue und qälitativ hohe Herstellung.

Die Baufelder befinden sich innerorts auf einem neu ausgewiesenem Baufeld.

 

 


05/2025

Liegnitzer Straße  | Aufstockung einer Lagerhalle

 

 

Nahe dem Paul-Linke-Ufer in Berlin-Kreuzberg plant PWK GmbH Architekten eine Aufstockung einer Lager- und Produtkionshalle aus den 1960er Jahren. Die Halle wird kostengünstig und modular auf die Bestandsdecke gesetzt. Diese sollte ursprünglich nur saniert werden. Allerdings wurden die Kosten so berechnet, dass eine Aufstockung mit einigen Zusatzmitteln möglich wurde. Es wird an das bestandstreppenhaus angeschlossen und die Meiden in das 1. OG geszogen. Aufgrund der engen innerstädtischen Situation ersfolgt eine genaue Abstimmung mit allen Nachbarn. Die schwierige Statik muss für die Aufstockung berücksichtigt werden und mit wenigen Mitteln nutzbar werden.

 

 


04/2025

Prinzregentenstraße | Neubau eines Wohnbaus und Sanierung eines Dachgschosses

 

 

PWK Architekten ist mit der Planung eines Wohnbaus im Hinterhof beauftragt worden. Der Bauantrag ist in der Vorbereitung und nimmt langsam Gestalt an. Die Nachverdichtung ist ein erster Schritt in der Komplettsanierung des gesamten Ensembles. Dieses besteht aus dem Altbauvorderhaus, dem auszubauenden Dachgeschoß und dem Wohnneubau im Hinterhof.

Die beiden Bestandsteile sollen gestalterisch zusammengefügt werden. Die Gartenplanung wird auf die gewählte Gestalt der Baukörper und Gestaltung Bezug nehmen.

 


03/2025

Schkeuditz | Neubau des Wohnviertels "Elsterquartier"

 

 

Die Planung in Schkeuditz schreitet voran. Wir sind in der Vorbereitung der Bauanträge. Es wurden zahlreiche Probleme, wie Verträglichkeiten, Erschliessungen, Anwohnerbelange u.a. gelöst. Wir sind gespannt, wie es nun sukkzessive zur Ausführung kommen wird.


 

01/2025

Schkeuditz | Neubau eines Wohnquartiers

 

 

Das Bestandteil des Planungsauftrags des Projektes Leipzig-Schkeuditz ist ein komplexes Parkhaus mit über 560 Parkplätzen. Nach Eruierung aller möglichen Varianten ist ein extrem optimiertes Parkhaus hinsichtlich der Konstruktion und der Auslastung entstanden. Die Statik ist bereits gerechnet und wird eingeplant. Die Fassade wird aus feingliedrigen Edelstahlvernetzungen hergestellt.


 

10/2024

Storkower Straße | Neubau von 280 studentischen Wohneinheiten

 

 

PWK GmbH hat den Auftrag zur Planung eines großflächigen Wohnbaus erhalten. Im Bezirk Prenzlauer Berg in der Storkower Straße entstehen über 280 Einheiten studentisches Wohnen. Die Einheiten werden als Mikroappartements oder als zusammenschaltbare Zweizimmereinheiten geplant. Das Gebäude wird in vorgefertigter Modulbauweise erstellt.


 

08/2024

Schkeuditz | Neubau von 15 Wohngebäuden

 

 

Das PWK Architekten haben den Auftrag für den Neubau eines Stadtviertels in Schkeuditz/Sachsen erhalten. Das neu zu errichtende Viertel fügt sich in die Stadtstruktur ein, indem es die vorhandenen Bebauungen verdichtet und mit dem nördlichen Teil in den direkten Innenstadtbereich reicht. Im Süden begrenzt das Gebiet die Schwarze Elster und sorgt damit für ein besonderes Aufenthaltsklima.

Das ehemalige Gebiet des Kombinats "Edelpelz" wird von den Verunreinigungen befreit und renaturiert. Die Bauten werden weitestgehend in einem parkähnlichen Ambiente stehen, so dass der PKW-Verkehr auf ein Minimum reduziert werden kann.


 

07/2024

Wichmannstraße | doppelgeschossige Aufstockung eines Wohn- und Geschäftshauses

 

 

Das sechsgeschossige Bestandsgebäude aus den 80er Jahren wird mit einer doppelgeschossigen Aufstockung erweitert. Die dargestellten drei Geschosse umfassen das letzte Bestandsgeschoß. Dieses dient als gestalterische Grundlage zum Weiterbauen des leicht technoid wirkenden Ensembles.

Das Bestandsgebäude zieht sich als achtgeschossige Konstruktion um die Ecke zur Budapester Straße. Der Neubau nimmt die Höhen des Bestands auf und führt diesen höhenmäßig in den Kontext ein.

In der Ausführung wird die Grundkonstruktion der Aufstockung als leichter, vorgefertigter Holzbau erstellt.

In einer weiteren Planungsstufe wird die gesamte Fassade erneuert und klimatechnisch auf den neuesten Stand gebracht.


 

04/2024

Sewanstraße | Neubau eines mehrgeschossigen Studentenwohnheims

 

 

Das studentische Wohnheim in der Sewanstraße naht sich der Fertigstellung. Das in modularen Bauteilen hergestellte Bauwerk umfasst Studiostudentenwohnungen, Nebenräume für die Nutzung sowie ein Café im Erdgeschoß. Die Bauzeit wurde durch die Bauweise um 1/3 verkürzt. Die Ausführungsqualität ist durch die Vorproduktion im Werk weit überdurchschnittlich.


 

03/2024

Schneller Straße | Ausbau eines Dachgeschosses und Neubau eines Townhouses

 

 

Das Dachgeschoss des Bestandshauses in der Schneller Straße 42 in Berlin-Oberschöneweide wird ausgebaut und teilweise neu erstellt. Eine schmale Baulücke mit nur 6 m Breite wird mit einem fünfgeschossigen Townhouse gefüllt. Die erste Baumaßnahme ist das Dachgeschoß. Nach dessen Fertigstellung wird das Townhouse begonnen.


 

03/2024

Reichenberger Straße | Neuplanung eines Wohngebäudes

 

 

In der Reichenberger Straße wird momentan der Innenausbau des Neubaus vorbereitet. Peters Wormuth Kaiser Architekten haben die Planung für das Wohngebäude in dem weitläufigen Hinterhof erstellt. Die Lage nahe dem Paul-Linke-Ufer ist für das innenstädtische Leben ideal. Die Architektur fügt sich in den Kontext dieses urbanen Kontextes ein und bietet insgesamt neun Wohnungen und einer KITA Platz. Das Bauwerk erhält eine Tiefgarage.


 

02/2024

Otto-von-Guericke-Straße in Magdeburg | Sanierung eines gründerzeitlichen Wohn- und Geschäftshauses

 

 

 

Im Zentrum von Magdeburg nahe dem Hasselbachplatz wird das Bestandsbauwerk umfassend von Peters Wormuh Kaiser Architekten saniert und die innere Struktur den zeitgenössischen Anforderungen angepasst.  Neue Wohnungsaufteilungen spiegeln den modernen Bedarf an kleineren Wohnungen wieder. Die alte, denkmalgeschützte Innenstruktur muss dazu weitreichend ertüchtigt und umgeplant werden. Die Herausforderungen liegen hier in der Beinbehaltung alter Ausstattungsgegenstände, wie Türen, Fenster und Stukkaturen sowie die Integration des brandschutzes sowie der neuaustattung der TGA.

Das Erdgeschoß wird teilweise umgeplant. Die gewerblichen Nutzungen im EG und im Hochparterre verbleiben in Nutzung während die Bauarbeiten durchgeführt werden.

Die Fassade wird denkmalpflegerisch überarbeitet.


 

11/2023

Berlin-Rixdorf | Sanierung des denkmalgeschützten Bauernhofensembles

Sanierung von neun denkmalgeschützten Bestandshäusern

 

 

Weitere Gebäude des denkmalgeschützten Ensembles sind fertig gestellt worden. Die alte Scheune und der alte Stall wurden zusammen begonnen. Nun ist der alte Stall bezugsfertig. Die komplexen denkmalrechtlichen und milieuschutzrechtlichen Genehmigungen wurden erteilt und in die Bauphase integriert. Alle historischen Bauteile wurden erhalten und sichtbar gemacht. Neue Materialien, wie Lehmputz, führen das Bauwerk in eine neue Nutzung und Zeit. Die Bestandbauteile aus den Bauphasen 1860 und 1980 wurden erhalten und überarbeitet. Somit fügen sie sich in das Gesamtkonzept ein. Das Holzfachwerk wurde gesichert und kann so geschützt im Innen- und Aussenbereich weitere Jahrzehnte überdauern.

Alle Farbangaben wurden mittels eines umfangreichen retauratorischen Gutachten festgestellt und überprüft. Neue Farbgebungen wurde angepasst und mit dem Denkmalamt besprochen.

 

07/2023

Berliner Allee, Berlin-Weissensee | Neubau eines Wohnhauses mit Remisen im Hinterhof

 

Die Bauarbeiten auf dem Grundstück Berliner Allee 94 in Berlin-Weissensee haben begonnen. Das Projekt wurde mittlerweile verkauft und ruhte durch diesen Prozess einige Monate.

Es entstehen nun auf sechs Vollgheschossen Mikroappartements. In dem historischen Hinterhof wird eine Bestandsremise aus der Jahrhundertwende saniert und zu Wohnzwecken umgestaltet. Flankiert wird dieses Bauwerk durch zweigeschossige Neubauremisen, ebenfalls zu Wohnzwecken. Durch die Architekture entsteht ein ruhiger Innenhof mit einer hohen Aufenthaltsqualität für Familien.

Das Bauwerk soll gemäß dem Entwurf aus drei unterschiedlichen Putzarten an der Straßenfront gestaltet werden: Rilleputz unterschiedlicher Stärke und Glattputz.


06/2023

Martin-Luther-Straße, Berlin-Schöneberg | Neubau von Dachgeschossen

 An der stark befahrenen Martin-Luther-Straße werden auf Wohnbauten aus den 50er Jahren diverse Dachgeschosse aufgebaut. Die Planung dazu mußte die diversen Bestandsdachformen, die unterschiedlichen und schwierigen Treppenhausverhältnisse und die statisch relevanten Punkte genau im Auge behalten. Die genaue Planung der Haustechnik stellt  eine besondere Herausforderung dar, da diese nicht nur an den alten Bestand angeschlossen werden muss, sondern auch mit dem Brandschutz und der Statik koordiniert werden muss. Zwischenebenen und leichte Baumaterialien sind daher eine Kombination, die diese großflächigen Aufstockungen möglich machen.

Der Rohbau ist bereits fertig, der Ausbau wird in diesen Wochen beginnen. Besonders spannend werden die neuen Aufzüge, die in die Bestandtreppenhäuser teilweise im Treppenauge aufgestellt werden.


 Im Süden von Berlin plant PWK Architekten eine Neubauwohnanlage mit insgesamt 18 Bauten. Die Leistungsphasen 1-5 sind mittlerweile abgeschlossen und die baubegeleitende Ausführungsplanung ist weit fortgeschritten. Die Anlage befindet sich in einem 50%-igen Fertigstellungsziel.


 

11/2022

Ostendstraße 19 | Berlin-Oberschöneweide

Neubau von 445 Mikroappartements als studentisches Wohnen

Die Bauaktivitäten des studentischen Wohnheims für die Berlinovo sind in vollem Zuge. Die Geschwindigkeit des Aufstellens der einzelnen, vorgefertigten Wohnzellen ist beeindruckend. Um dieses zu erreichen wurde in der Planung jedes Modul einzeln mittels einer zusätzlichen Modulmappe nebst Zellenplanung, Haustechnikplanung und Einbauten versehen. Auf diesem Wege sind alle Anschlüsse sowie Übergänge genauestens nummeriert und können nahtlos hergestellt werden.

Die Bauzeit halbiert sich in etwa durch die vorfabrizierte Bauart.

https://www.bpd-immobilienentwicklung.de/unsere-arbeit/niederlassung-berlin/ostendstrasse/


 

08/2022

Richardplatz 3 | Berlin-Neukölln

Sanierung des denkmalgeschützten Gebäudeensembles Berlin-Rixdorf

Im August wurde die denkmalrechtliche Genehmigung für das geschützte Gebäudensembles Richardplatz 3 in Berlin-Neukölln erteilt. Die Bauten des ehemaligen böhmischen Dorfes in Berlin-Rixdorf werden behutsam saniert. Dazu wurde mit Restauratoren und Befunden gearbeitet, die eine originalgetreue Restaurierung und eine Weiterführung für die Zukunft möglich macht.

Das Ensemble besteht aus Bauten aus dem 19. Jahrhundert als auch Bauten aus den 1980er Jahren. Das Konzept faßt die Bauten stilistisch als Bauensemble zusammen und modernisiert die Substanz behutsam. Fehleinbauten aus den vergangenen Jahrzenhnten werden entfernt. Die Aussenflächen werden von einer qulifizierten Fachplanung überarbeitet.

Der erste Bauteil des Ensembles in der Donaustraße ist bereits fertig gestellt worden.


 

06/2022

Sewanstraße, Berlin-Treptow

vorelementiertes Wohngebäude

 Peters Wormuth Kaiser Architekten erhalten den Auftrag zur Planung eines vorelementierten Wohnbaus in der Sewanstraße in Berlin-Treptow. Das fünfgeschossige Bauwerk beinhaltet neben den Wohneinheiten ein Café sowie Räume für die Kinderbetreuung.

Der Baubeginn ist für 2023 angedacht.


 

05/2022

Baugenossenschaft Vaterland

Neubau von 52 Wohneinheiten im Bestand

 Im Mai 2022 wurden die ersten EInheiten der neuen Wohneinheiten der Baugenossenschaft Vaterland in der Alboinstraße / Burchardstraße / Eresburgstraße bezogen.

Die neuen Einheiten sind im Rahmen der genossenschaftlichen Wohnanlage stellen einen Beitrag zur Minderung des Preisdrucks auf den Wohnungsmarkt dar.  das Ziel der Genossenschaft ist es, günstigen Wohnraum für jüngere Bewohner und junge Familien anbieten zu können. Dazu wurden zwei Gebäudeflügel aufgestockt und alle Dachgeschosse zu Wohnzwecken ausgebaut.

Die Planung wurde eng mit der Stadtplanung und der Bauaufsicht des Bezirks Schöneberg abgestimmt. Der jetzige Bürgermeister von Berlin-Schöneberg und ehemalige Leiter der Abteilung Stadtentwicklung und Bauen, Herr Jörn Oltmann, hat sich aktiv unterstützend dem Projekt in der Planungsphase gewidmet. Dadurch wurden u.a. Aufzüge an der Eresburgstraße möglich.

 

 

10/2025

Neue Hochstraße | Sanierung eines Wohngebäudeensembles

 

 

PWK GmbH konnte die Planung und die Bauleitung für den öffentlichen Bauträger WHG in Eberswalde gewinnen. Der Wohnbau aus der Jahrhundertwende wird kernsaniert, neu aufgeteilt und technisch auf den Stand nachhaltiger Bewirtschaftung geführt. Das Bauwerk ist der erste öffetnliche Auftrag für PWK GmbH. Wir freuen uns auf die Aufgabe.

 

 


08/2025

Eberswalde | Sanierung eines Wohngebäudes

 

 

PWK GmbH konnte die Planung und die Bauleitung für den öffentlichen Bauträger WHG in Eberswalde gewinnen. Der Wohnbau aus der Jahrhundertwende wird kernsaniert, neu aufgeteilt und technisch auf den Stand nachhaltiger Bewirtschaftung geführt. Das Bauwerk ist der erste öffetnliche Auftrag für PWK GmbH. Wir freuen uns auf die Aufgabe.

 

 


06/2025

Hamburg-Alstertal | Neuausbau eines Sport- und Fitnessclubs

 

 

In den letzten Jahren hat PWK GmbH sieben Sport- und Fitnessclubs des Betreibers David Lloyd/Meridian in Deutschland saniert oder neugeplant. Der seit den 2000er Jahren existierende Club wird auf zwei Geschossen komplett saniert, neu ausgestattet und hochwertig erneuert. Dazu zählen die Eingangssituationen, die Poolbereiche und die Saunalandschaften. Das Dachgeschoß, das komplett genutzt wird, gehört ebenso zu dem zu bearbeitenden Umfang.

 

 


03/2025

Richardplatz 3 | Sanierung eines denkmalgeschützten Wohnbauensembles

 

 

Wie renoviert man ein ganzes Dorf, das unter Denkmal- und Milieuschutz steht?

Mitten in Berlin-Neukölln liegt eines unserer schönsten und anspruchsvollsten Projekte: das 400 Jahre alte Böhmisch-Rixdorf. Ein Dorf, das nicht nur eine besondere Geschichte hat, sondern auch unter Denkmal- und Milieuschutz steht. Was heißt das genau für die Sanierung?

Wir haben zuerst ein restauratorisches Konzept anfertigen lassen. Das schickte uns auf eine spannende Reise durch die Zeit: Vom Gebäude am Richardplatz 3 wurde Schicht für Schicht abgetragen, um die ursprünglichen Farben herauszufinden. Zu unserer Überraschung waren sie gelb statt weiß! Von der Türklinke bis zum Dachbalken haben wir mit dem Denkmalpflegeamt geprüft, was wir alles erhalten und auf den neusten Stand bringen können. Wir haben jeden Stein umgedreht und jeden Dachschindel untersucht. Heute sehen die Bewohner:innen das Emblem des Zimmermanns, der die Balken vor 200 Jahren gefertigt hat.

 

Die Geschichte zum Leben erwecken und dabei neue Wohnqualität schaffen.

Die historsich nicht korrekte Stuck-Renovierung aus den 80er Jahren haben wir entfernt und mit der damals üblichen Bautechnik wiederherstellen lassen. Bestehende Wendeltreppen haben wir überarbeitet und somit neu belebt. Zugegeben, eine so besondere Renovierung braucht Zeit – vor allem für die regelmäßigen Abstimmungen mit der Denkmalschutzbehörde. Aber für uns ist es auch die ganz hohe Kunst, ein derart wertvolles Gebäude in die Moderne zu überführen, so dass die Menschen auch gern dort wohnen möchten.

 

Erhalten statt Ersetzen schont nicht nur das Denkmal. Sondern auch die Ressourcen.

Soviel wie möglich aus dem Bestand zu erhalten, ist unser Ziel, nicht nur bei denkmalgeschützten Gebäuden. Je weniger Material wir austauschen, desto ressourcenschonender ist der Bau. Etwas um- und aufzuarbeiten ist nicht nur für uns immer die bessere Alternative, sondern auch für die Umwelt.

 


02/2025

Prinzregentenstraße | Sanierung eines Altbaus und Neubau eines fünfgeschossigen Wohnhauses

 

 

PWK wurde mit der Planung eines Wohnbauquartiers beauftragt. Es handelt sich um die Sanieung eines alten Wohnbaus aus der Jahrhundertwende. Im Hinterhof wird zusätzlich ein fünfgeschossiger Neubau geplant.


11/2024

Pankstraße | Neubau eines Wohngebäudes

 

 

Das Bauwerk in dem Stadteil Wedding nähert sich der Fertigstellung. Die Nachverdichtung innerhalb eines bestehenden Wohnblocks sah auf den Plänen sehr eng aus. In der Realität aber ist eine sehr schöne und wohnbare Verdichtung des Bestands erfolgt.


 

09/2024

Berliner Allee | Neubau von Mikroappartements und Sanierung einer Remise

 

 

Das Projekt Berliner Allee 94 nähert sich der Fertigstellung. Das Vordergebäude ist fast fertig. Es fügt sich harmonisch in den Kontext ein und führt den klassichen Altbau weiter. Die besondere Herausforderung war die Integration von Mikroappartements in eine lebendige und passende Umgebung.

Die hinteren Bauten stellen ein Ensemble aus Altbau und Neubau dar. Hier werden größere Wohnungen für Familien entstehen.

 

06/2024

Kantstraße | Sanierung und Dachausbau eines Altbaus

 

Das Bestandsgebäude in der Kantstraße 28 in Berlin-Charlottenburg wird im EG komplett umgebaut, die Fassaden neu strukturiert und das Dachgeschoß neu aufgesetzt.

Das Erdgeschoß wird zu Gewerbezwecken neu gestaltet. Ein hochklassiges Restaurant und eine Eisdiele finden nun Platz auf Straßenniveau. Die Fassade wird aufgestuckt und entsprechend den alten Ansichten wiederhergestellt. Details werden der zeitgenössischen Nutzung angepasst. Das Dachgeschoß wird abgebrochen und optimiert aufgesetzt. Dazu werden die Zugänge neu gestaltet, so dass diese den Vorgaben des Brandschutzes entsprechen. Die Höhen wurden optimiert, um die Nutzung hell gestalten zu können.

Alle Aufgänge werden anhand der historischen Vorgaben und den Anforderungenn des Auftraggebers erneuert.


 

03/2024

Storkower Straße | Neubau eines Studentenwohnheims

 

Aufgrund der großen Erfahrung mit Modulbauten ist PWK Architekten mit der Planung eines achtgeschossigen Neubaus in der Storkower Straße 220 beauftragt worden. Die Firma Lechner übernimmt die Ausführung. In enger Systemabstimmung wird das Bauwerk nun für den Modulbau vorbereitet. Insgesamt werden über 240 EInheiten geplant und später realisiert. Der Betreiber der Immobilie ist die senatseigene Berlinovo. Für die Berlinovo wurde von PWK Architekten bereits die Bauten Sewanstraße (siehe NEWS) sowie Ostendstraße realisiert.


 

03/2024

Pankstraße | Neubau eines mehrgeschossigen Wohnbaus

 

Die Baustelle in Berlin-Wedding ist bereits im 3. Obergschoss angekommen. Die enge Baulücke stellt eine hohe innerstädtische Verichtung dar, die den dringend benötigten Wohnraum dort schafft, wo dieser benötigt wird. Die Wohnungsgrundrisse richten sich an Familien und Wohngemeinschaften.


 

03/2024

Berliner Allee | Neuplanung von Wohngebäuden und Sanierung einer Bestandsremise

 

 

Das Wohnbauensemble in der Berliner Allee 94 in Berlin-Weissensee ist im Rohbau fertig gestellt. Die sechsgeschossige Lückenschliessung, die Sanierung der Bestandsremise und der Neubau der Hinterhofbebauung bietet an der belebten Hauptverkehrs- und Einkaufstraße Mikroappartements als auch familiengerechte Wohnungen Platz.


 

Die Wohnanlage in Wildau, südlich von Berlin, nähert sich der Fertigstellung. Die ersten Bauten sind bereits aussen fast fertiggestellt. Der Innenausbau ist in vollem Gang. Ende Juni 2024 soll die Anlage mit allen Aussenanlagen fertig gestellt und einzugsbereit sein.


 

01/2024

Martin-Luther-Straße, Berlin-Schöneberg | Neubau von Dachgeschossen und Sanierung des Bestands

 

 

 

Das erste von sechs Dachgeschoßbauten ist fertig gestellt. Die neuen Wohneinheiten wurden auf die Bestandsbauten aus den 1950er Jahren erstellt. Die Planung von Peters Wormuth Kaiser Architekten umfasst die Neubauten als auch die Sanierung des Bestands sowie den Neueinbau von Aufzügen. Die Bestandsfassaden der darunterliegenden Bauten werden ebenfalls überarbeitet.

 


10/2023

Frankfurt/Oder | Gutachten zum Thema Urheberrecht und Schutz eines Bauwerks

 

 

Peters Wormuth Kaiser Architekten wurden seitens der Investitionsbank des Landes Brandenburg mit einer Architektenexpertise beauftragt. Das Gutachten bewertet das Institutsgebäude der IHP in Frankfurt/Oder hinsichtlich der komplexen Thematik des Urheberrechts. Die Expertise führt anahnd einer umfangreiches Untersuchung und Einordung Gründe auf, ob und wenn ja, auf welche Weise ein Schutz des Bauwerks gemäß des gültigen Urhebergestzes angewendet werden kann. Auf der Grundlage des Gutachtens werden EU-Fördermittel beurteilt. Peters Wormuth Kaiser Architekten wurden mit diesen Leistungen beauftragt, da durch eigene rechtliche Einordnungen der eigenen Werke hinsichtlich des Urheberrechtsgesetzes belastbare Erfahrungen vorhanden sind.


 

10/2023

Teltow Fläming | Neubau einer Wohnsiedlung

 

 

Auf einem nicht bebauten Grundstück entstehen in den Jahren 2024-2025 17 Doppelhäuser in Massivbauweise. Die Bauten werden auf Grundlage des QNG und ready kompakt Standards geplant. Zusätzlich werden die Richtlinien des GEG 40NH mit einbezogen. Besonderer Wert wird auf die maximale Ausnutzung des über 30 Jahrealten Bebauungsplans gelegt. Dieser weist eine geringe GRZ II von nur 20% aus. Somit sind moderne Nutzungsstrukturen nicht mit eingeschlossen. Auf amtlicher und politischer Ebene muss daher verhandelt werden, inwieweit besondere Regelungen zur zeitgemäßen Planung getroffen werden.

Die Bauten umfassen ein Voll- und ein Dachgeschoß.


09/2023

Rixdorf | Sanierung des denkmalgeschützten Bauernhofensembles

Sanierung von neun denkmalgeschützten Bestandshäusern

Die Bauarbeiten umfassen nun das vierte Gebäude auf dem denkmalgeschützten, ehemaligen Bauernhof mitten in Berlin-Rixdorf. Die alte Scheune wird langsam fertig und die Gestaltung nimmt Formen an.

Die Wohnungen im EG und DG sind fast fertig. Die alte Bausubstanz wurde erhalten bzw. in Szene gesetzt. Sehr zurückhaltend werden die Räume in Ihren Eigenarten zu Geltung gebracht. Dabei wird nicht nur die 150 Jahre alte Bausubstanz beachtet, sondern auch Baudetails aus den 1980er Jahren. Die Schwierigkeit besteht hier bei der Lösung dämmtechnischer Probleme. Alte Bauteile müssen auf die neuen Materialien, wie z.B. Lehmputz, abgestimmt werden.


06/2023

Reichenberger Straße, Berlin-Kreuzberg | Neubau eines Wohnhauses

 Die Planung des Neubaus in der Reichenberger Straße 142 mußte einige Herausforderungen betreffs des Grundbaus integrieren. Eine alte Bestandstiefgarage mußte abgerissen werden. Dazu mußte eine nachbarliche Bestandremise gesichert werden. Denn eine neue Tiefgarage wird direkt neben das alte Bauwerk gesetzt. Zusätzlich herrschen schwierige Grundwasserverhältnisse auf dem Grundstück. Durch die komplexe Planung ist es aber gelungen die Probleme technisch-wirtschaftlich ordentlich zu lösen, so daß nun der Grundbau beginnen kann.

Das Grundstück liegt nur einen Block vom Paul-Linke-Ufer entfernt und verspricht durch die Innenblocklage eine hervorragende Wohnqualität in dem lebendigen Kiez.


 

02/2023

Budapester Straße | Neuplanung einer doppelten Aufstockung

Aufstockung eines Bestandswohnhauses

PWK Architekten haben den Auftrag für eine doppelte Aufstockung eines Bauwerks aus den frühen 80er Jahren erhalten. Aufgrund der Erfahrung im Bauen im Bestand und der Nachverdichtung im städtischen Raum wurde die Planungsaufgabe an uns vergeben.

Sie umfasst die Anpassung der genehmigungsrelevanten Themen der diversen Umbauten der vergangenen Jahrzehnte sowie die Neuplanung von Wohnbaufläche als Nachverdichtungspotenzial. Die neuen Dachgeschosse sollen aus Gewichts- und Nachhaltigkeitsgründen aus Holz erstellt werden. Dieses stellt u.a. eine hohe Hürde betreffs der prüfungsrelevanten Planungsthemen dar. Eine weitere Herausforderung wird die Integration der Dachgeschosse in die Bestandsfassade des Betonbauwerks darstellen.


12/2022

Rixdorf | Sanierung des denkmalgeschützten Bauernhofensembles

Sanierung von neun denkmalgeschützten Bestandshäusern

Es werden neun denkmalgeschützte Bauten umgeplant und saniert. Die Ensemble setzt sich aus den alten bäuerlichen Kernbauten "Stall" und "Scheune" sowie den späer dazugekommenen Wohnbauten aus den Jahren 1890 und 1983 zusammen.

Das gesamte Areal unterliegt dem Ensembleschutz. Der Stall und die Scheune sowie der Wohnbau Richardplatz 3b aus dem Jahren um 1890 stehen unter Einzeldenkmalschutz. Alle Planungen sind daher auf Grundlage sorgfältiger restauratorischer Untersuchungen durchgeführt worden. Alle historisch nachweisbaren Bauteile werden erhalten, ausgebessert und in den originalen Farbtönen gestrichen. Dort wo sinnvoll werden die Bauten passend modern erweitert.

Die Bauten aus den 80er Jahren werden zeitgemäß überarbeitet und den Altbauten farblich und materiell zurückhaltend zugordnet.

Die Aussenanlagen werden ebenfalls restauratorisch untersucht und im Rahmen des Ensembleschutzes saniert und erweitert.

Das Grundstück und die Bauten unterliegen neben dem Denkmalschutz auch dem Milieuschutz des Bezirks Berlin-Neukölln. Alle verwendeten Materialien wurden eng mit den zuständigen Ämtern abgestimmt.

Die Baumaßnahmen werden vorraussichtlich bis Ende 2023 beendet werden.

 


 

10/2022

Kantstraße 28 | Berlin-Charlottenburg

Sanierung eines Gründerzeitgebäudes

Die Planungen für das Wohn- und Geschäftshaus in der Kantstraße haben begonnen. Das gesamte Gebäudeensemble, bestehend aus Vorderhaus, Seitenflügel und Hinterhaus, wird grundsaniert. Das Dachgeschoß wird zu Wohnzwecken komplett neu aufgestellt. Die Fassade wird anhand historischer Pläne wieder aufgestuckt.

Im Erdgeschoß wird ein hochwertiges Restaurant sowie ein weiteres Gastronomiegewerbe eingeplant.


 

09/2022

Münsterlandstraße 50 | Berlin-Lichtenberg

Neubau von 120 Wohneinheiten

PWK Architekten sind mit der Objektplanung des Wohnbauensembles in Berlin-Lichtenberg beauftragt worden. Das Bauwerk wird sich in Form, Gestaltung und Aufteilung in das Umfeld einfügen. Dieses ist durch genossenschaftliches Wohnen und moderate Neubauten geprägt. Die Platzlage stellt das Bauwerk als wichtigen Baustein heraus. Darauf soll durch besondere städtebauliche Betonungen reagiert werden.

Vorraussetzung der Planung war der Abriß der ehemailgen, durch das MfS der DDR gesponsorte, Neuapostolische Kirche. Das Bauwerk wurde durch die Denkmalschutzbehörde als nicht erhaltungswürdig eingestuft. Es handelt sich um ein Bauwerk aus der Serienproduktion des Wohnungsbaukombinats Suhl.

Der neue Stadtbaustein wird Wohnungen für die mittlere Einkommensschicht bereithalten. Wirtschaftlich geplante Wohneinheiten werden in dem Bereich von 2-4 Zimmern liegen. Alle Wohnungen werden mit Balkonen ausgestattet.


 

07/2022

Ostendstraße 19 | Berlin-Oberschöneweide

Neubau von 445 Mikroappartements als studentisches Wohnen

Am 12.07.2022 wurde der Baustellbeginn des studentischen Wohnheims Ostendstraße 19 im Rahmen einer Veranstaltung mit geladenen Gästen offiziell gefeiert. Dazu wurde die Regierende Bürgermeisterin Frau Franziska Giffey eingeladen. Die Regierende Bürgermeisterin konnte sich ein Bild des vorfabrizierten und elementierten Bausystems machen. Als Sprecherin würdigte Sie diese besonderen Planungs-und Bauaktivitäten, die helfen der Stadt Berlin ausreichend Wohnraum in kurzer Zeit zur Verfügung zu stellen.

Das Projekt wird von der senatseigenen Wohnungsbaufirma Berlinovo betrieben. 445 studentische Einzimmereinheiten werden kostenffizient an dem hochschulnahen Standort Oberschöneweide erstellt. Dazu fabriziert die Baufirma Lechner, Deutsche Modulbau, das Bauwerk in Modulbauweise vor.  Jede Wohneinheit wird dazu als "Zelle" an den Standort fertig gebaut und ausgestattet geliefert. Die Montage der Einheiten kann in kurzer Zeit und mit einer hohen Qualitätsgarantie durchgeführt werden. Im Vorfeld wurde das Bauwerk dazu detailgenau von Peters Wormuth Kaiser Architekten durchgeplant. Die effiziente Planungs- und Bauweise verringert Bautoleranzen, Materialverbrauch und Bauzeiten.

Städtebaulich passt sich das Bauwerk anhand der Blockrandbebauung in den Kontext ein und wird so ein Baustein des sich erneuernden Oberschöneweide.