Ruhlsdorfer Straße 

Teltow | Neubau eines Mehrfamilienwohnhauses

 

Urban am Stadtrand

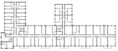
Auf dem Neubaugrundstück entstehen in wirtschaftlicher Bauweise 128 Neubauwohnungen. Alle Wohnungen genügen dem GNG Standard. Das Gebäude ist mit einer Tiefgarage unterkellert. Die Architektur respektiert den Standort am Stadtrand und bietet in einem großflächigen Bauwerk eine neue Wohnwelt. Die Wohnungen sind schaltbar entworfen und der Aussenraum bietet eine naturnahe Erfahrung.